Italiano
288.000 €

Albignasego (PD) - Casa singola da ristrutturare

Casa singola in vendita • Albignasego
Ad Albignasego, in località Ferri, proponiamo in vendita spaziosa casa singola degli anni Settanta da ristrutturare.
Situata in una zona tranquilla e residenziale, questa abitazione offre tutto lo spazio e il comfort di cui una famiglia ha bisogno.
La casa si sviluppa su due piani per un totale di 370 metri quadrati ed è circondata da giardino di proprietà.
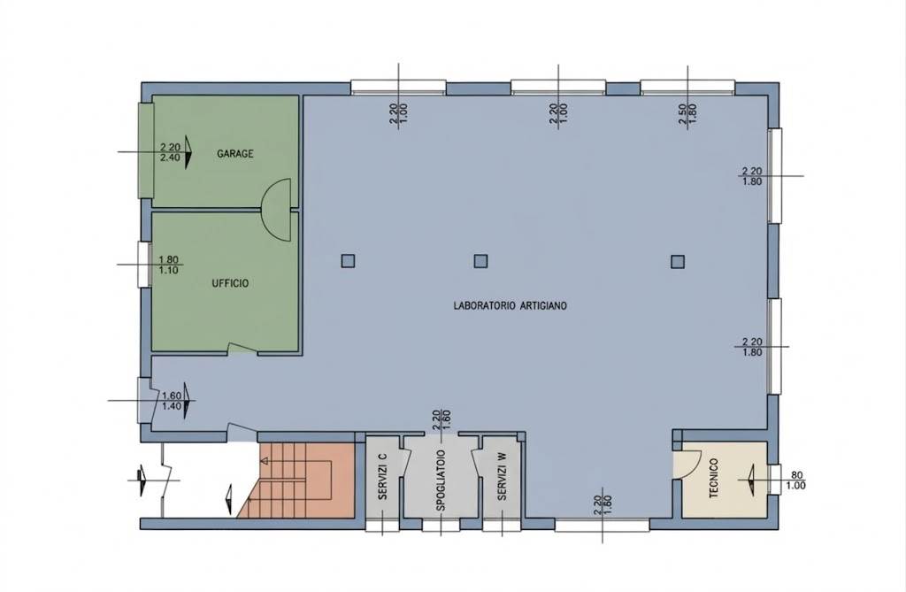
Il piano terra è completamente dedicato ad un'area artigianale con laboratorio, magazzino, bagni, spogliatoi, ufficio e garage per un'auto. Il primo piano invece ospita l'appartamento residenziale con accesso dal piano terra e si compone di un ampio ingresso, soggiorno con caminetto, cucina abitabile, tre camere da letto, studio, due bagni, poggiolo sulla facciata e un ampio terrazzo sul retro.
L'immobile è del 1968 e non è mai stato ristrutturato, quindi finiture, impianti e tetto sono dell'epoca.
Il piano terra, attualmente accatastato come magazzino (C/2), può essere convertito in residenziale, con un cambio di destinazione d'uso.
Questa casa, con la sua ampia metratura, si presta a più opzioni:
- soluzione genitori/figli trasformando il piano terra in un appartamento residenziale;
- soluzione casa/lavoro per chi necessita di una zona artigianale;
- due nuclei familiari;

La casa è già disponibile, in pronta consegna, un ottimo investimento per chi cerca una casa spaziosa da personalizzare, in una zona tranquilla e ben servita.
Caratteristiche principali
Codice
AL962
Città
Albignasego
Categoria
Casa singola
Prezzo
288.000 €
Locali
7
Camere
4
Bagni
2
Mq
370
Box
1
Balconi
1
Terrazzi
1
Classe energetica
F
Stato Immobile
Da Ristrutturare
Grado
Medio
Posizione
Centro
Orientamento
Nord Ovest Sud Est
Lati Liberi
4
Giardino
Privato
Tipo Soggiorno
Soggiorno
Tipo Cucina
Abitabile
Riscaldamento
Autonomo
Tipo Riscaldam.
Caldaia
Tipo Impianto
Radiatori
Infissi
Legno
Serramenti
Discreto
Persiana
Tapparella Legno
Pavim. Giorno
Marmo
Pavim. Notte
Parquet
Pavim. Cucina
Marmo
Pavim. Bagno
Ceramica

Accessori: Camino

Condividi su
Cookie preference