Italiano
135.000 €

Due Carrare (PD) - Bicamere

Appartamento in vendita • Due Carrare
A Due Carrare, proponiamo in vendita luminoso e accogliente appartamento in una zona tranquilla e residenziale, ideale per chi desidera vivere lontano dal caos della città ma con tutti i servizi essenziali a portata di mano.

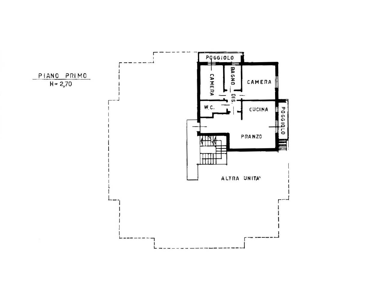
L'immobile è situato al primo piano ed è composto da tre vani spaziosi e ben distribuiti, che offrono ampi spazi per la vita quotidiana. L'ingresso si apre su un luminoso soggiorno, caratterizzato da ampie finestre che permettono alla luce naturale di filtrare all'interno, creando un'atmosfera calda e accogliente. La cucina, a vista, è dotata di tutti i comfort necessari e gode di un'ampia zona pranzo ideale per i pasti in famiglia. Completa la zona living un ampio poggiolo da cui si gode una vista aperta sulla campagna circostante.
La zona notte è composta da due camere da letto, entrambe spaziose e luminose, e da due bagni moderni e ben rifiniti, uno con vasca e uno con doccia.
Al piano terra troviamo infine un garage per un'auto.
L'appartamento è in ottime condizioni, con un'ottima esposizione a sud ovest.

La consegna è prevista per SETTEMBRE/OTTOBRE 2026, non perdere l'opportunità di visitare questo delizioso appartamento e iniziare a immaginare la tua nuova vita.
Caratteristiche principali
Codice
DC958
Città
Due Carrare
Categoria
Appartamento
Prezzo
135.000 €
Locali
3
Camere
2
Bagni
2
Mq
85
Box
1
Mq Box
13
Balconi
2
Piano
1
Classe energetica
In fase di valutazione
Stato Immobile
Buono
Grado
Medio
Orientamento
Sud Ovest
Lati Liberi
2
Tipo Soggiorno
Soggiorno
Tipo Cucina
A Vista
Riscaldamento
Autonomo
Tipo Riscaldam.
Caldaia
Tipo Impianto
Radiatori
Fonte Energetica
Gas
Infissi
Legno Doppio Vetro
Serramenti
Buono
Persiana
Tapparella Metallo
Pavim. Giorno
Ceramica
Pavim. Notte
Parquet
Pavim. Cucina
Ceramica
Pavim. Bagno
Ceramica

Accessori: Cancello Elettrico, Doppi Vetri, Porta Blindata

Condividi su
Cookie preference