Italiano
129.000 €

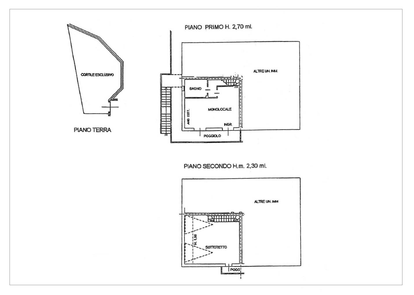
Due Carrare (PD) - Duplex con 2 camere

Appartamento in vendita • Due Carrare
Nel comune di Due Carrare, in località Cornegliana proponiamo in vendita luminoso e accogliente appartamento situato in una zona tranquilla e ben servita. Con una superficie di 92 mq, l'immobile è composto da tre vani spaziosi e ben distribuiti, ideali per accogliere una famiglia o una coppia in cerca di un ambiente confortevole e funzionale.

L'appartamento si trova al primo e secondo piano di una palazzina di 5 unità e dispone di un accesso indipendente al piano terra (condiviso con l'immobile confinante) che conduce ad una scala esterna e al terrazzo di proprietà.
L'ingresso si apre su un'ampia zona giorno con cucina a vista, caratterizzata da ampie finestre che permettono alla luce naturale di illuminare gli ambienti per gran parte della giornata. Al piano troviamo un ampio bagno finestrato con doccia e un ripostiglio sotto scala.
La cucina realizzata su misura viene lasciata nel prezzo di vendita come anche la stufa a pellet.
Il reparto notte, completamente travato in legno, si compone di un'ampia camera matrimoniale finestrata, una seconda stanza con armadio a muro e accesso ad un poggiolo e un bagno finestrato con vasca.
Al piano interrato un grande garage di 27 mq.
Poche spese condominiali.

Attualmente l'appartamento è locato a € 600,00/mensili con contratto in scadenza il 31/01/2029, ottimo quindi anche come investimento.

Non perdere l'occasione di visitare questo immobile.
Caratteristiche principali
Codice
DC959
Città
Due Carrare
Categoria
Appartamento
Prezzo
129.000 €
Locali
3
Camere
2
Bagni
2
Mq
100
Box
1
Balconi
1
Piano
1
Classe energetica
D
93,5
Stato Immobile
Buono
Grado
Medio
Orientamento
Sud Ovest
Lati Liberi
2
Giardino
Cortile
Arredi
Solo Cucina
Tipo Soggiorno
Soggiorno
Tipo Cucina
A Vista
Riscaldamento
Autonomo
Tipo Riscaldam.
Caldaia
Tipo Impianto
Radiatori
Fonte Energetica
Gas
Infissi
Legno Doppio Vetro
Serramenti
Buono
Persiana
Oscurante Legno
Pavim. Giorno
Ceramica
Pavim. Notte
Parquet
Pavim. Cucina
Ceramica
Pavim. Bagno
Ceramica

Accessori: Stufa a Pellet

Condividi su
Cookie preference